ÉCRIN

Année: 2024
Emplacement: Méry s/ Oise (Fr)
Type: Maison familiale / résidence principale
Surface totale : 110 m² sur 2 niveaux
Phases développées : APS, APD, DCE

Située dans un quartier calme entre ville et campagne, cette maison des années 70 rénovée en 90 présentait une organisation figée, fragmentée, peu adaptée au mode de vie d’une famille créative, jeune et habitée. L’objectif : transformer l’ensemble en un espace fluide, lumineux, fonctionnel et porteur de sens.

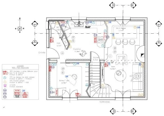
Le concept de "l’Écrin" structure le projet : une coquille accueillante où chaque usage est défini, cadré, sans jamais être figé. L’espace s’organise autour d’un escalier central en béton brut, sculptural et connecteur, véritable pivot spatial.

Les intentions se sont articulées autour de trois axes : Élégance, Focus, Intégration.

L’harmonie visuelle est renforcée par l’intégration de formes arrondies, comme l’alcôve du coin lecture, les luminaires graphiques et les niches murales inspirées des années 70, qui apportent continuité et chaleur à l’espace.

Côté esthétique, la palette chromatique marie les tons primaires expressifs à des matériaux naturels et minéraux qui apportent vie et caractère à chaque recoin. Le vert et l’orange ponctuent l’ensemble dans les accessoires, et mobilier d’appoint.

Des solutions de rangement sur mesure et des éléments de design ciblés viennent souligner la personnalité de l’espacetout en préservant son équilibre et sa lisibilité.

Chaque pièce est conçue comme un cadre de vie immersif, articulant fonctionnalité domestique et identité esthétique assumée.

Au final, l’ensemble compose une maison ouverte mais structurée, ludique mais élégante — un "intérieur paysage" à vivre et à inventer au quotidien.

Matérialité et atmosphère

  • Façades intérieures enduites blanc mat, murs ponctuellement habillés de carreaux de faïence carrés

  • Sols en résine sablée

  • Mobilier sur mesure en contreplaqué bouleau, touches d’acier laqué orange, assises bleues profondes

  • Cheminée centrale habillée d’un enduit fin blanc cassé

Interventions clés

  • Réorganisation complète du rez-de-chaussée autour d'un espace cuisine-salle à manger-salon en enfilade, ponctué de seuils et de cadrages visuels

  • Intégration d'un coin lecture en contrebas et d'un ilot central modulaire incluant rangements et bibliothèque basse

  • Travail particulier sur l’éclairage naturel et artificiel : spots sur rails noirs, luminaires graphiques, lumières indirectes

  • Plans techniques sur AutoCAD, croquis d’esquisse et zoning manuel préliminaire

  • Modélisation 3D sous SketchUp Pro, rendus photoréalistes via V-Ray pour la mise en ambiance

Précédent
Précédent

BLOC

Suivant
Suivant

LA MAISON DU VILLAGE