TOURELLE

Année: En Cours
Emplacement: Tourelle, Saint-Anne des Monts (Qc)
Type: Residentiel - loft polyvalent
Surface totale : 526pi² (49m²)
Phases développées : APS, APD, DCE

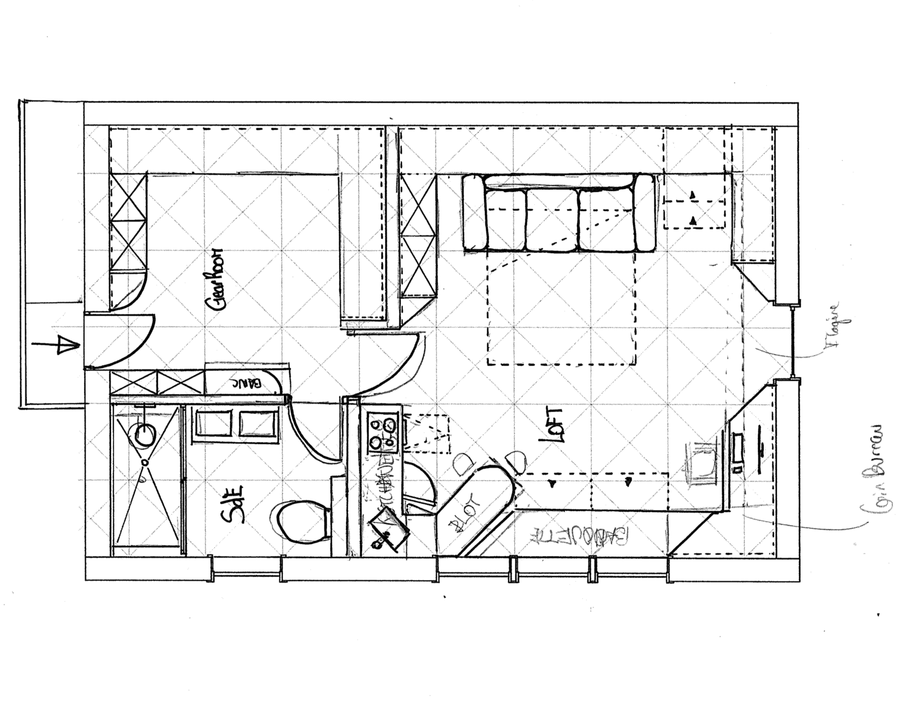
Le projet prend place dans un loft de 49 m² en Gaspésie, dans un territoire marqué par sa nordicité — sa lumière franche, ses paysages dégagés, son climat exigeant. Commandé par un couple, il propose la réorganisation complète d'un volume unique appelé à accueillir, sans cloisonnements superflus, un séjour, une cuisinette, un bureau, un coin nuit pour invités, une mudroom et une salle d'eau.

Le mobilier intégré occupe une place centrale dans l'écriture du projet : banquette d'angle avec coffres de rangement sur mesure, placards sous pente, vanité suspendue, crédence-étagère, buffet et bureau pensés comme des prolongements du bâti. Architecture et mobilier se confondent — chaque centimètre est habité, sans ostentation.Un jeu fin de shadow gaps (1/4" et 3/4") donne au mobilier sa précision et sa retenue.

Le concept s'articule autour de l'idée de refuge nordique : un volume continu, structuré par les usages plutôt que par les cloisons, pensé comme un abri lisible et calme. Trois mots-clés en définissent l'esprit : continuité, sérénité, simplicité.

L'intervention prend le parti d'un grand volume central dégagé, où chaque fonction trouve sa place sans rupture. Les circulations sont volontairement directes, la salle d'eau réimplantée pour gagner en confort d'usage, le gear room intégré au volume principal comme une extension fonctionnelle. L'ensemble repose sur une logique de continuité — des circulations, des matériaux et des volumes — où chaque zone reste identifiable sans jamais être isolée.

L'ambiance recherchée est celle d'un refuge calme, lumineux et matériel : un lieu où l'on s'installe, où l'on ralentit, en écho au territoire qui l'entoure.

Le projet s'appuie sur une palette matérielle sobre et chaleureuse : pin massif de Gaspésie ou contreplaqué de bouleau pour le mobilier intégré, peinture velours blanche pour les surfaces enveloppantes, comptoirs en Terrazzo ou Corian blanc pour la cuisinette et la salle d'eau.

La conception a été menée en plusieurs étapes :

  • Recueil des besoins, relevé du volume existant et définition du périmètre

  • Trois itérations d'esquisses (V1, V2, V3) et synthèse définitive après retours clients

  • Plans APS sur AutoCAD : plan général, plan coté, sept coupes-élévations annotées et cotées

  • Schémas techniques (éclairage, électricité)

  • Modélisation 3D sous SketchUp Pro et rendus photoréalistes V-Ray (espace de vie, mudroom, salle d'eau)

Suivant
Suivant

BLOC